Opis nekretnine

Prodaje se stan u novogrdanji - Sukošan, 200m od mora!



Na prodaju je stan u visokokvalitetnoj novogradnji smještenoj u Sukošanu, svega nekoliko minuta vožnje od Zadra. Nalazi se u prizemlju moderne zgrade u izgradnji, s planiranim završetkom radova i useljenjem u travnju 2026. godine.

Nalazi se na mirnoj i atraktivnoj lokaciji, u neposrednoj blizini mora – samo 200 metara od plaže!

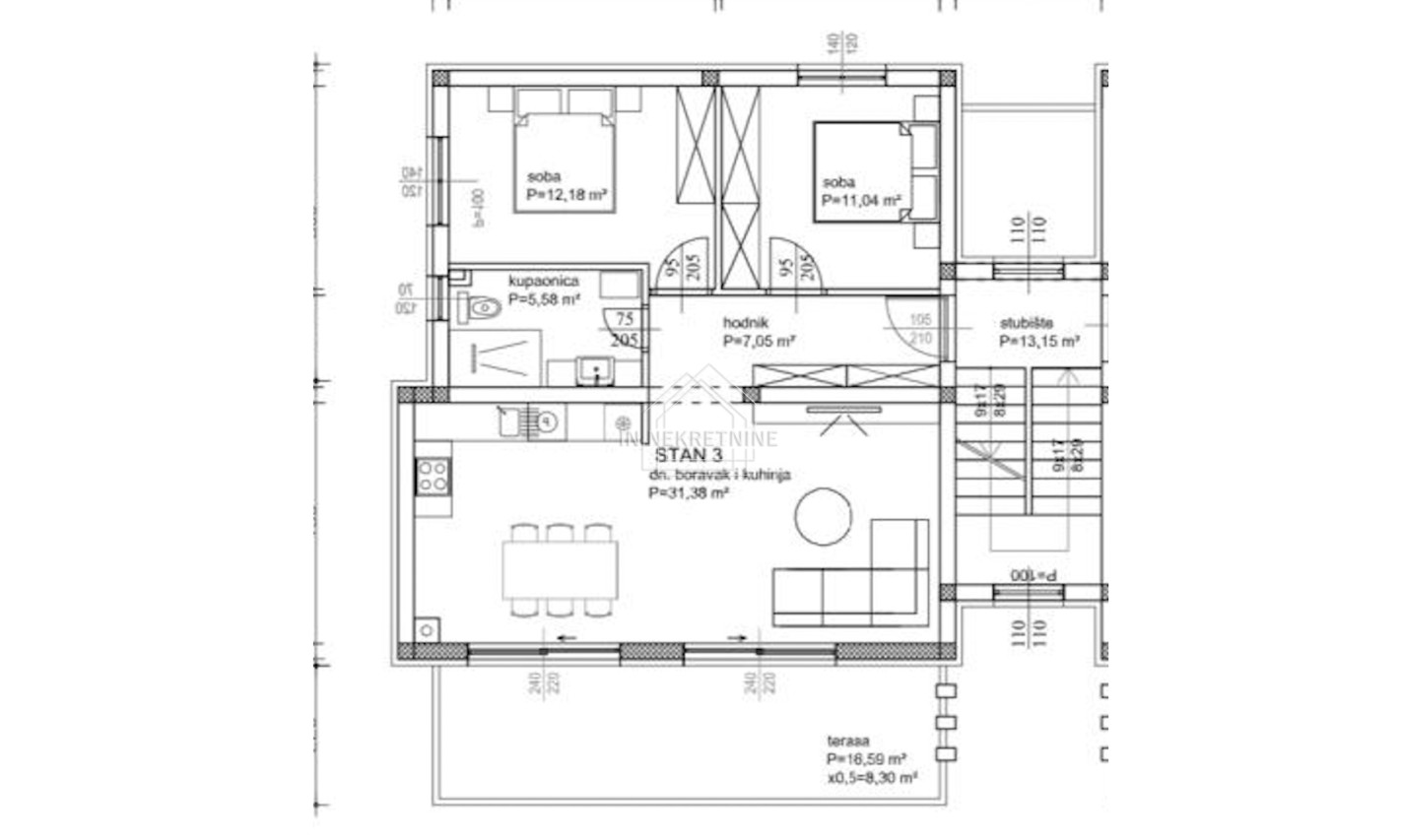
Stan se sastoji od:

  • Open-space kuhinje, blagovaonice i dnevnog boravka
  • Dvije spavaće sobe
  • Kupaonice
  • Hodnika
  • Terase (8,30 m²)
  • Vanjskog parkirnog mjesta  

Ukupna neto površina stana s pripadcima 78,02 m2

Stan se gradi prema visokim standardima:

  • Vrhunska drvo-aluminij stolarija
  • Talijanski porculan prve klase (Marazzi/Mirage)
  • Hrastov parket u sobama
  • Podno grijanje u dnevnom boravku i kupaonici
  • Mitsubishi multi-split klima sustav
  • Protuprovalna vrata
  • Parking obložen betonskom opločnikom

Za više informacija i dogovor oko razgledavanja, slobodno nas kontaktirajte.

  • Šifra objekta A646
  • Tip Apartman na moru
  • Mjesto Sukošan
  • Naselje
  • Površina 78.00 m2
  • Novogradnja -
  • God. izgradnje
  • Kat 1
  • Br.spavaćih soba 2
  • Terasa / loggia +
  • Udaljenost od mora 200
  • Pogled na more +
  • Parking +
  • Garaža -
  • Grijanje
  • Komunalije gradski vodovod
  • Dozvole vlasnički list, građevinska dozvola
  • Energetski certifikat -
  • Cijena po m2 0,00 €
  • Ukupna cijena 273.070,00 €