Opis nekretnine

NOVOGRADNJA! Jednosoban stan u modernoj zgradi – Borik, Zadar!


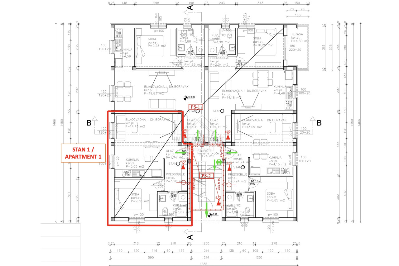
Na prodaju je jednosoban stan smješten u prizemlju kvalitetne novogradnje u atraktivnom dijelu Zadra, predio Borik. Zgrada je trenutno u fazi gradnje, grubi radovi su završeni, a završetak svih radova i useljenje planirano je u prvoj polovici 2026. godine.

Stan se sastoji od:

  • ulaza i predsoblja

  • jedne spavaće sobe

  • kupaonice s wc-om

  • kuhinje s blagovaonicom i dnevnim boravkom u open space konceptu

U spavaćoj sobi predviđen je parket, dok će ostatak stana biti obložen kvalitetnim keramičkim pločicama. Stanu također pripada ostava u podrumu zgrade (10,97 m²) i jedno vanjsko parkirno mjesto.

Ova nekretnina je savršen izbor za sve koji traže moderan stan na vrhunskoj lokaciji, bilo za osobno stanovanje ili kao investiciju.

 


Za dodatne informacije i dogovor oko razgledavanja, slobodno nas kontaktirajte.

  • Šifra objekta S491
  • Tip Stan
  • Mjesto Zadar
  • Naselje Borik
  • Površina 47.00 m2
  • Novogradnja +
  • God. izgradnje 2025
  • Kat 0
  • Br.spavaćih soba 1
  • Terasa / loggia -
  • Parking +
  • Garaža -
  • Grijanje klimatizirano
  • Komunalije gradski vodovod, gradska kanalizacija, telefon
  • Dozvole vlasnički list, građevinska dozvola
  • Energetski certifikat -
  • Cijena po m2 0,00 €
  • Ukupna cijena 187.440,00 €