Opis nekretnine

PRVI RED DO MORA - Trosoban penthouse s bazenom na krovnoj terasi i predivnim pogledom na more


Na jednoj od najekskluzivnijih lokacija u Zadru, u mirnoj uvali uz more, smještena je moderna zgrada s ukupno šest luksuznih stanova. Projektirana s fokusom na privatnost, udobnost i vrhunsku kvalitetu, zgrada se nalazi uz more, s neometanim pogledom, plažom u neposrednoj blizini i u blizini svih sadržaja potrebnih za kvalitetan život ili luksuzni odmor.

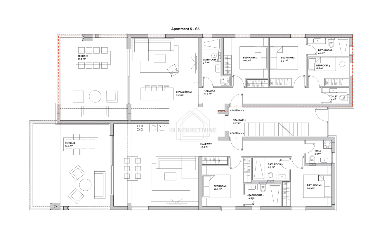
Stan se nalazi na drugom katu zgrade i prostire se na ukupno obračunskih 151,44 m².

Tlocrt:

Na drugom katu nalazi se stambeni dio koji se sastoji od prostrane kuhinje s blagovaonicom i dnevnim boravkom, tri spavaće sobe, dvije kupaonice, odvojenog WC-a i hodnika. Iz dnevnog boravka se izlazi na lođu (30 m2) i natkrivenu terasu. Stanu pripada i krovna terasa površine 118,19 m2 s privatnim bazenom (12 m2), ljetnom kuhinjom i natkrivenim dijelom – savršena za uživanje tijekom toplih mediteranskih dana.

Pripadak stanu je spremište u podrumu (7,34 m2) i dva garažna parkirna mjesta u podzemnoj garaži.

 

Oprema i tehničke karakteristike:

  • Lift s izravnim pristupom iz podzemne garaže sve do krovne terase

  • Punionica za električna vozila

  • Visina stropova: 280 cm

Vrata i stolarija:

  • Ulazna vrata Kolnoa – protuprovalna, vatrootporna, s unosom šifre, čitačem otiska prsta i klasičnim ključem

  • Unutarnja vrata od poda do stropa, bez dovratnika, zvučno i toplinski izolirana

  • Dodatna Termo-tech zvučna izolacija između etaža

  • Električne rolete i električni venecijaneri u sobama

  • Komarnici na svim prozorima i balkonskim vratima

Podovi:

  • 3-slojni hrastov parket u spavaćim sobama

  • Keramičke pločice velikog formata (300×120 cm) – talijanski Laminam u ostalim prostorijama

Grijanje i hlađenje:

  • Podno grijanje putem Mitsubishi dizalica topline

  • Mitsubishi klima uređaji u svakoj sobi

  • Wi-Fi povezani sustavi za grijanje i hlađenje – daljinsko upravljanje

Sanitarna oprema:

  • Tuš kabine u svim kupaonicama

  • Grohe Essence linija – slavine i tuševi

  • Villeroy & Boch umivaonici i WC školjke s integriranim sustavom pranja

 


Za više informacija i dogovor o razgledavanju, slobodno nas kontaktirajte.

  • Šifra objekta A606
  • Tip Apartman na moru
  • Mjesto Zadar
  • Naselje
  • Površina 151.00 m2
  • Novogradnja +
  • God. izgradnje 2025
  • Kat 2
  • Br.spavaćih soba 2
  • Terasa / loggia +
  • Udaljenost od mora 10 m
  • Pogled na more +
  • Parking +
  • Garaža +
  • Grijanje klimatizirano
  • Komunalije gradski vodovod, gradska kanalizacija, telefon
  • Dozvole vlasnički list, građevinska dozvola
  • Energetski certifikat -
  • Cijena po m2 0,00 €
  • Ukupna cijena 1.302.341,00 €