Opis nekretnine

Stan u novogradnji u Zatonu pokraj Zadra – Savršeno mjesto za odmor, samo 150 m od mora!


Na prodaju je prekrasan stan oznake SB5 u novogradnji, smješten u mirnom i atraktivnom mjestu Zaton pokraj Zadra, na samo 150 metara od mora i prekrasne plaže, što ga čini savršnim izborom za sve koji traže mir, prirodu i blizinu mora! 

Ova nekretnina nudi savršen spoj modernog dizajna i funkcionalnosti, a završetak izgradnje i useljenje očekuje se do kraja 2025. godine, što vam omogućuje da uživate u potpuno novom i modernom prostoru. Zgrada je opremljena liftom, što omogućuje jednostavan pristup svim etažama stana – od podruma do krovne terase. Ova nekretnina idealna je za obiteljsku upotrebu, odmor ili investiciju. 

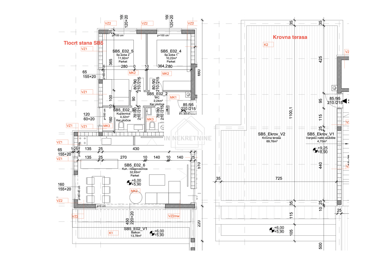
Stan (etažna jedinica Stan SB5) smješten je na drugom katu i sastoji se od:

  • ulaznog prostora, kuhinje, blagovaonice, kupaonice, wc-a, dvije udobne spavaće sobe i balkona
  • Dodatni sadržaji: spremište u podrumu zgrade, krovna terasa (69,81 m2), dva vanjska parkirna mjesta

Cijena: 440.000,00 €

* Kupac ne plaća porez na promet nekretnina, budući da je prodavatelj pravna osoba!

 


Za više informacija ili dogovor o razgledavanju, slobodno nas kontaktirajte.

  • Šifra objekta A592
  • Tip Apartman na moru
  • Mjesto Nin
  • Naselje Zaton
  • Površina 99.00 m2
  • Novogradnja +
  • God. izgradnje 2025
  • Kat 2
  • Br.spavaćih soba 2
  • Terasa / loggia +
  • Udaljenost od mora 150 m
  • Pogled na more +
  • Parking +
  • Garaža -
  • Grijanje klimatizirano
  • Komunalije gradski vodovod, telefon
  • Dozvole vlasnički list, građevinska dozvola
  • Energetski certifikat -
  • Cijena po m2 0,00 €
  • Ukupna cijena 440.000,00 €