Opis nekretnine

Moderan dvosoban stan s vrtom – 50 m od mora, Zadar – Diklo


Na prodaju je komforan dvosoban stan u vrhunskoj novogradnji s ukupno 9 stambenih jedinica, smješten na izuzetno atraktivnoj i mirnoj lokaciji – svega 50 metara od mora u prestižnom zadarskom naselju Diklo. 

Stan se odlikuje modernim rasporedom interijera, vrhunskim materijalima i kvalitetnom završnom obradom, energetski je izuzetno učinkovit (A+ certifikat). Pripadajući vrt površine 30,28 m2 savršen je za opuštanje, sunčanje i uživanje u boravku na otvorenom u ljetnim mjesecima.

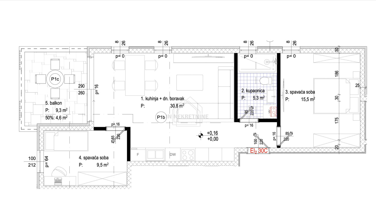
Ukupna neto površina stana s pripadcima je 76,97 m².

Raspored stana:

- Otvoreni prostor kuhinje, blagovaonice i dnevnog boravka

- Dvije spavaće sobe 

- Kupaonica

- Balkon

- Vrt

- Ostava u podrumu

- Dva vanjska parkirna mjesta

 


Za više informacija i dogovor oko razgledavanja, slobodno nas kontaktirajte.

  • Šifra objekta A631
  • Tip Apartman na moru
  • Mjesto Zadar
  • Naselje Diklo
  • Površina 76.00 m2
  • Novogradnja +
  • God. izgradnje 2025
  • Kat 0
  • Br.spavaćih soba 2
  • Terasa / loggia -
  • Udaljenost od mora 50
  • Pogled na more +
  • Parking +
  • Garaža -
  • Grijanje klimatizirano
  • Komunalije gradski vodovod
  • Dozvole vlasnički list, građevinska dozvola
  • Energetski certifikat A+
  • Cijena po m2 0,00 €
  • Ukupna cijena 334.398,00 €