Opis nekretnine

Dvosoban stan u novogradnji s pogledom na more 


Na prodaju je atraktivan stan u modernoj novogradnji s ukupno šest stambenih jedinica, smješten u mjestu Sv. Petar na Moru, u općini Sv. Filip i Jakov. Zgrada je trenutno u fazi izgradnje, a nalazi se na mirnoj lokaciji, svega 150 metara od mora i plaže – svega 5 minuta hoda.

Stan se nalazi na prvom katu i pruža predivan pogled na Pašmanski kanal. Idealna je prilika za one koji traže savršeno mjesto za odmor, ali i za život – kombinirajući mir i blizinu prirode s lako dostupnim sadržajima u obližnjim gradovima Zadru i Biogradu na Moru.

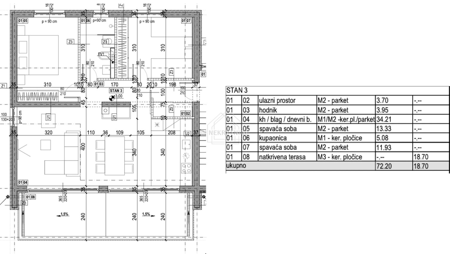
Netto površina stana sa svim pripadcima iznosi 83,32 m2.

Stan se sastoji od:

  • ulaznog prostora

  • hodnika

  • kuhinje s blagovaonicom i dnevnim boravkom u open-space konceptu

  • dvije spavaće sobe

  • kupaonice

  • natkrivene terase s pogledom na more

Stanu pripada jedno vanjsko parkirno mjesto.

Posebnosti:

  • odlična lokacija blizu mora

  • novogradnja u mirnom okruženju

  • pogled na more

  • blizina Zadra i Biograda

Ova nekretnina idealna je za osobnu upotrebu tijekom ljetnih mjeseci, ali i kao investicija za turistički najam.

 


Za dodatne informacije i razgledavanje slobodno nas kontaktirajte.

  • Šifra objekta A611
  • Tip Apartman na moru
  • Mjesto Sv. Filip i Jakov
  • Naselje Sv. Petar na Moru
  • Površina 83.00 m2
  • Novogradnja +
  • God. izgradnje 2025
  • Kat 1
  • Br.spavaćih soba 2
  • Terasa / loggia +
  • Udaljenost od mora 150 m
  • Pogled na more +
  • Parking +
  • Garaža -
  • Grijanje klimatizirano
  • Komunalije gradski vodovod, telefon
  • Dozvole vlasnički list, građevinska dozvola
  • Energetski certifikat -
  • Cijena po m2 0,00 €
  • Ukupna cijena 287.454,00 €