Property description

Ground Floor Apartment with Garden for Sale – Great Opportunity, Zadar (Plovanija)


For sale: a ground floor apartment in a newly built residential building, located in the quiet and desirable area of Zadar – Plovanija.
The property features a private garden of approx. 40 m² with a planned terrace, as well as two private parking spaces.

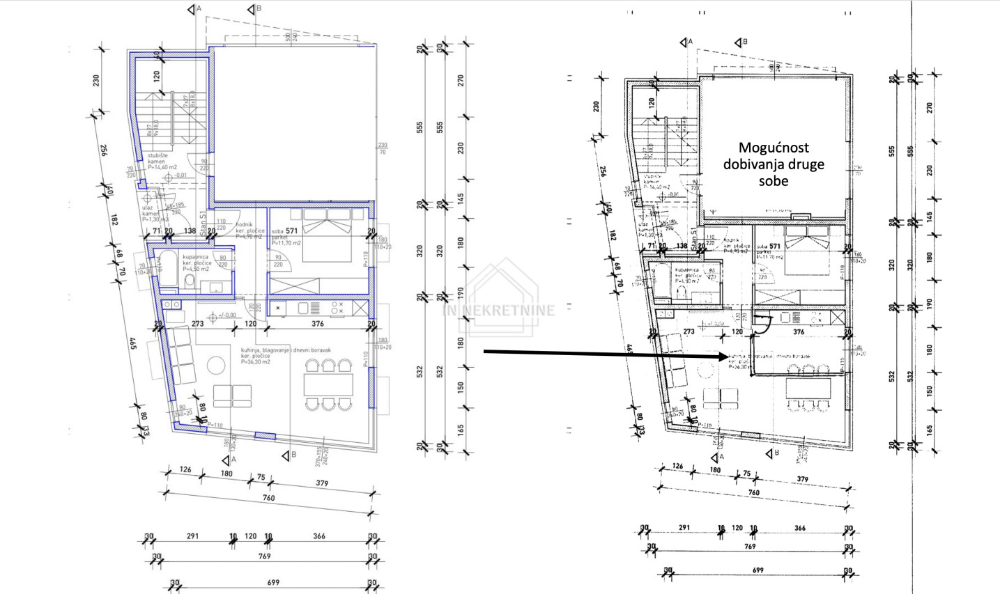
Layout (57.40 m² of interior living space):

  • hallway

  • bedroom

  • bathroom

  • kitchen with dining area and living room

According to the floor plan, the space can easily be adapted with a partition wall to create an additional bedroom, making the apartment even more functional and suitable for families.

The total net usable area including garden and parking spaces is 66.40 m².

Equipment and construction quality:

  • move-in scheduled for June 2026

  • electric underfloor heating in the bathroom

  • one air conditioning unit

  • reinforced concrete construction with façade insulated with 10 cm stone wool

  • PVC windows with electric shutters and insect screens

  • security and fire-resistant entrance door

  • floor coverings: tiles

  • chimney (possibility to install a fireplace or wood stove)

Why choose this apartment?

  • option to create an additional bedroom

  • private garden with terrace

  • two parking spaces included in the price

  • quiet and sought-after location

  • excellent road connections and close to all essential amenities

This is a fantastic opportunity for comfortable family living or as an investment for tourist rental.

  • Facility code S490
  • Type Apartment
  • Location Zadar
  • Town Plovanija
  • Surface area 66.00 m2
  • New building -
  • Year built 2025
  • Floor 0
  • Number of bedrooms 1
  • Terrace +
  • Parking +
  • Garage -
  • Heating air conditioning
  • Public Utilities city waterworks, city sewage, telephone
  • Permits title deed, building permit
  • Energy certificate -
  • Price per m2 0,00 €
  • Total price 199.000,00 €