Beschreibung der Immobilie

Zweizimmerwohnung 20 m vom Meer mit großer Loggia – Zaton bei Zadar


Zum Verkauf steht eine attraktive Wohnung in erstklassiger Lage in Zaton bei Zadar, nur 20 Meter vom Meer entfernt (zweite Reihe). Die Immobilie befindet sich in einem modernen und hochwertig errichteten Wohngebäudemit insgesamt 8 Wohneinheiten.

Die Wohnung liegt in einer äußerst gefragten Lage in unmittelbarer Meeresnähe, was besonders während der Sommermonate und Badesaison einen großen Vorteil darstellt. Die Nähe zur Stadt Zadar steigert zusätzlich den Wert und das Investitionspotenzial dieser Immobilie.

 

Raumaufteilung:

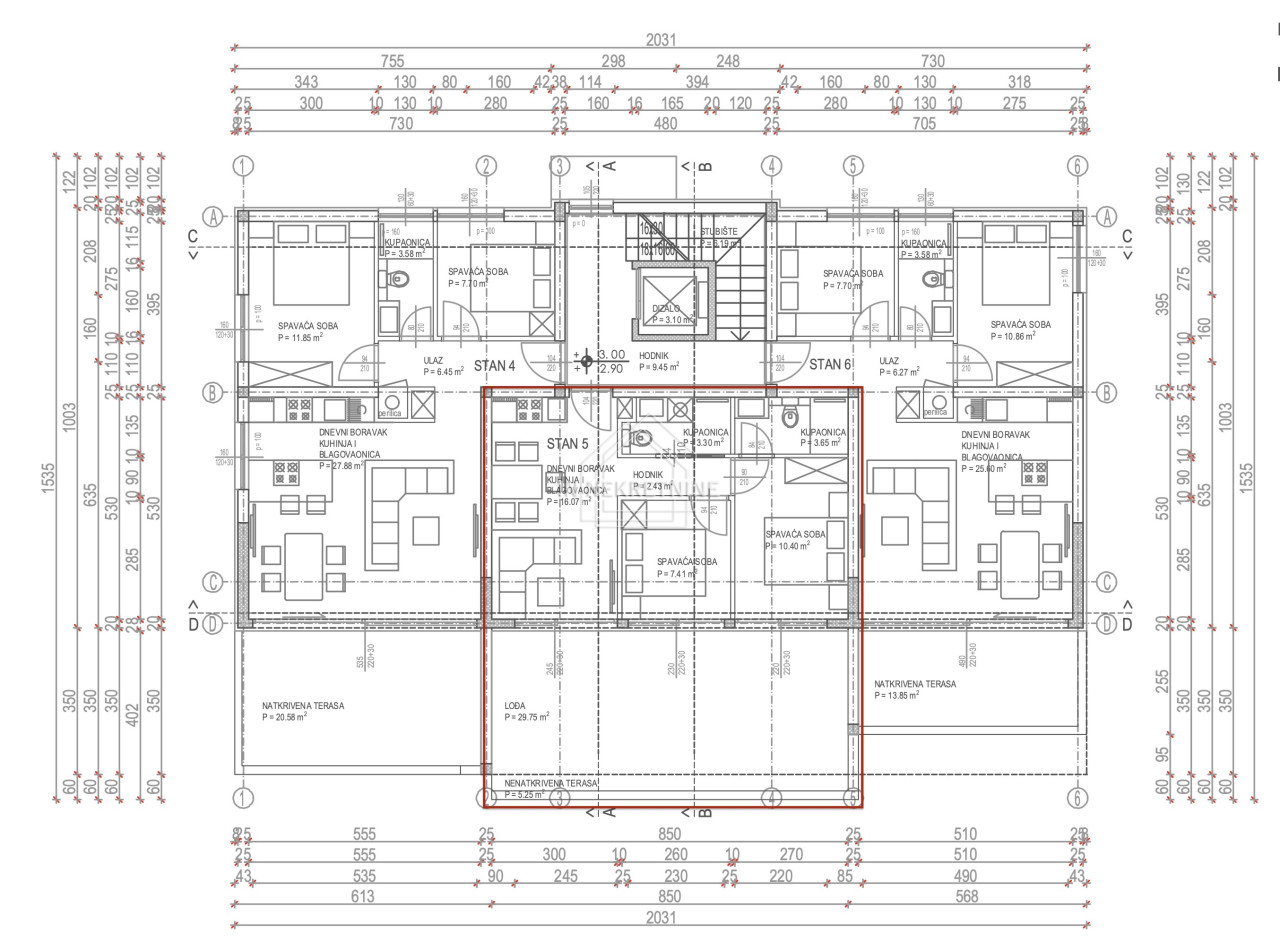
Die Wohnung besteht aus einem offenen Küchen- und Wohnbereich mit einer Fläche von 16,07 m², einem Flur mit 2,43 m², einem Schlafzimmer mit 7,41 m² sowie einem zweiten Schlafzimmer mit 10,40 m², das über ein eigenes Badezimmer mit 3,65 m² verfügt. Zusätzlich steht ein weiteres Badezimmer mit 3,30 m² zur Verfügung.

 

Außenbereiche:

Einen besonderen Mehrwert bieten die großzügigen Außenflächen, darunter eine große Loggia mit 29,75 m², ideal für den Aufenthalt im Freien während eines Großteils des Jahres, sowie eine nicht überdachte Terrasse mit 5,10 m².

Zur Wohnung gehören außerdem zwei Außenstellplätze.

Hochwertige Bauweise und Ausstattung:

  • Aluminiumfenster und -schiebetüren von Schüco mit elektrischen Rollläden und Jalousien

  • Schindler-Aufzug

  • Fußbodenheizung über Wärmepumpe

  • Mitsubishi-Klimaanlagen

  • Erstklassige großformatige Keramik

  • Hochwertiger Parkettboden

 

Der Käufer zahlt keine Grunderwerbsteuer, da der Verkäufer eine juristische Person ist.

  • Objektcode A672
  • Typ Ferienwohnung am Meer
  • Ort Nin
  • Siedlung Zaton
  • Fläche 73.00 m2
  • Neubau +
  • Baujahr 2025
  • Stockwerk 1
  • Anzahl der Schlafzimmera 2
  • Terrasse / Loggia +
  • Entfernung vom Meer 20 m
  • Meerblick +
  • Parkplatz +
  • Garage -
  • Heizung Klimaanlage
  • Nebenkosten Städtische Wasserversorgung, Telefon
  • Genehmigungen Eigentumsnachweis, Baugenehmigung, Nutzungsgenehmigung
  • Energieausweis -
  • Preis pro m2 0,00 €
  • Gesamtpreis 363.600,00 €