Beschreibung der Immobilie

Zweizimmer-Erdgeschosswohnung 20 m vom Meer – Zaton bei Zadar


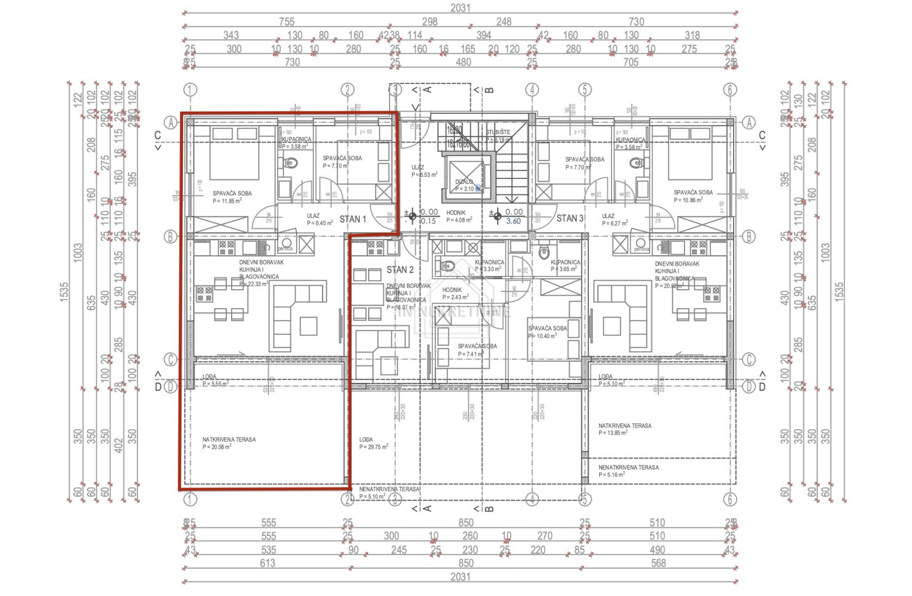
Zum Verkauf steht eine attraktive Wohnung in erstklassiger Lage in Zaton, nur 20 Meter vom Meer entfernt, im zweiten Reihe zum Meer. Die Immobilie befindet sich in einem modernen und hochwertig errichteten Wohngebäude mit insgesamt 8 Wohneinheiten.

Die Wohnung liegt in einer sehr begehrten Lage, in unmittelbarer Nähe zum Meer – ein großer Vorteil während der Sommermonate und der Badesaison. Die Nähe zur Stadt Zadar steigert den Wert dieser Immobilie zusätzlich.

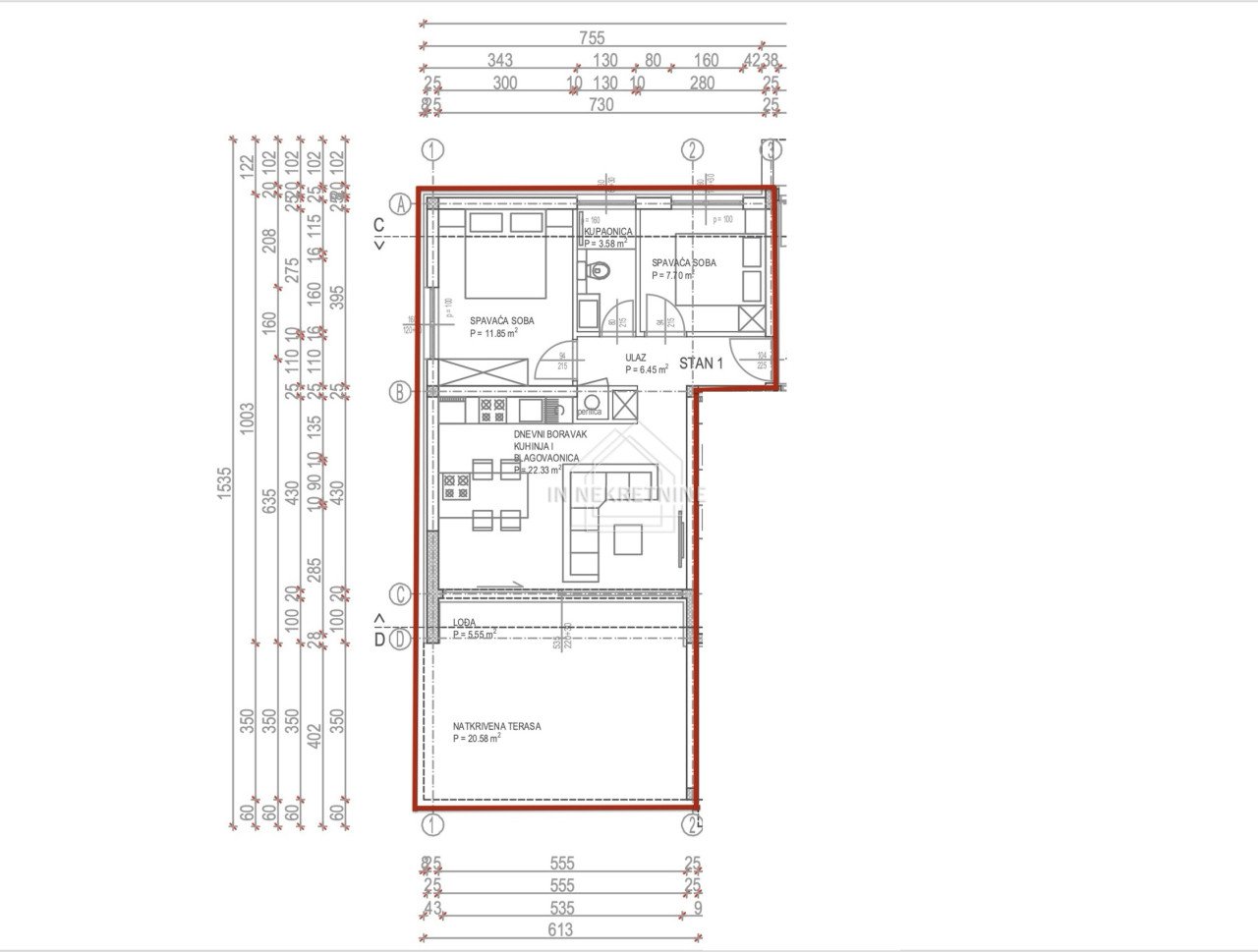
Die Wohnung verfügt über eine Innenfläche von 51,91 m², überzeugt jedoch durch eine sehr effiziente Raumaufteilungund hohen Wohnkomfort. Sie eignet sich ideal als Hauptwohnsitz, Ferienimmobilie oder Investition zur touristischen Vermietung.

Die gesamte nutzbare Fläche inklusive aller zugehörigen Bereiche beträgt 76,41 m².

Raumaufteilung:

  • Offener Wohn- und Küchenbereich – 22,33 m²

  • Eingangsbereich – 6,45 m²

  • Schlafzimmer – 11,85 m²

  • Schlafzimmer – 7,70 m²

  • Badezimmer – 3,58 m²

Außenbereiche:

  • Loggia mit 5,55 m², ideal für die Nutzung fast das ganze Jahr

  • Überdachte Terrasse mit 20,58 m²

  • Privater Garten mit 29 m²

Zur Wohnung gehören außerdem zwei Außenstellplätze.

Hochwertige Bauweise und Ausstattung:

  • Schüco Aluminiumfenster und-türen mit elektrischen Rollläden und Jalousien an Glasfronten

  • Schindler Aufzug

  • Fußbodenheizung über Wärmepumpe

  • Mitsubishi Klimaanlagen

  • Erstklassige Großformat-Keramik

  • Hochwertiger Parkettboden

* Der Käufer zahlt keine Immobilienerwerbssteuer, da der Verkäufer eine juristische Person ist.

  • Objektcode A668
  • Typ Ferienwohnung am Meer
  • Ort Nin
  • Siedlung Zaton
  • Fläche 77.00 m2
  • Neubau +
  • Baujahr 2025
  • Stockwerk 0
  • Anzahl der Schlafzimmera 2
  • Terrasse / Loggia +
  • Entfernung vom Meer 20 m
  • Meerblick -
  • Parkplatz +
  • Garage -
  • Heizung Klimaanlage
  • Nebenkosten Städtische Wasserversorgung, Telefon
  • Genehmigungen Eigentumsnachweis, Baugenehmigung, Nutzungsgenehmigung
  • Energieausweis -
  • Preis pro m2 0,00 €
  • Gesamtpreis 360.000,00 €