Beschreibung der Immobilie

Erdgeschosswohnung 20 m vom Meer mit großer Terrasse und Garten – Zaton bei Zadar


Zum Verkauf steht eine attraktive Erdgeschosswohnung in erstklassiger Lage in Zaton, nur 20 Meter vom Meer entfernt, im zweiten Reihe zum Meer. Die Immobilie befindet sich in einem modernen und hochwertig errichteten Wohngebäude mit insgesamt 8 Wohneinheiten.

Die Wohnung liegt in einer sehr begehrten Lage, in unmittelbarer Nähe zum Meer – ein großer Vorteil während der Sommermonate und der Badesaison. Die Nähe zur Stadt Zadar steigert den Wert dieser Immobilie zusätzlich.

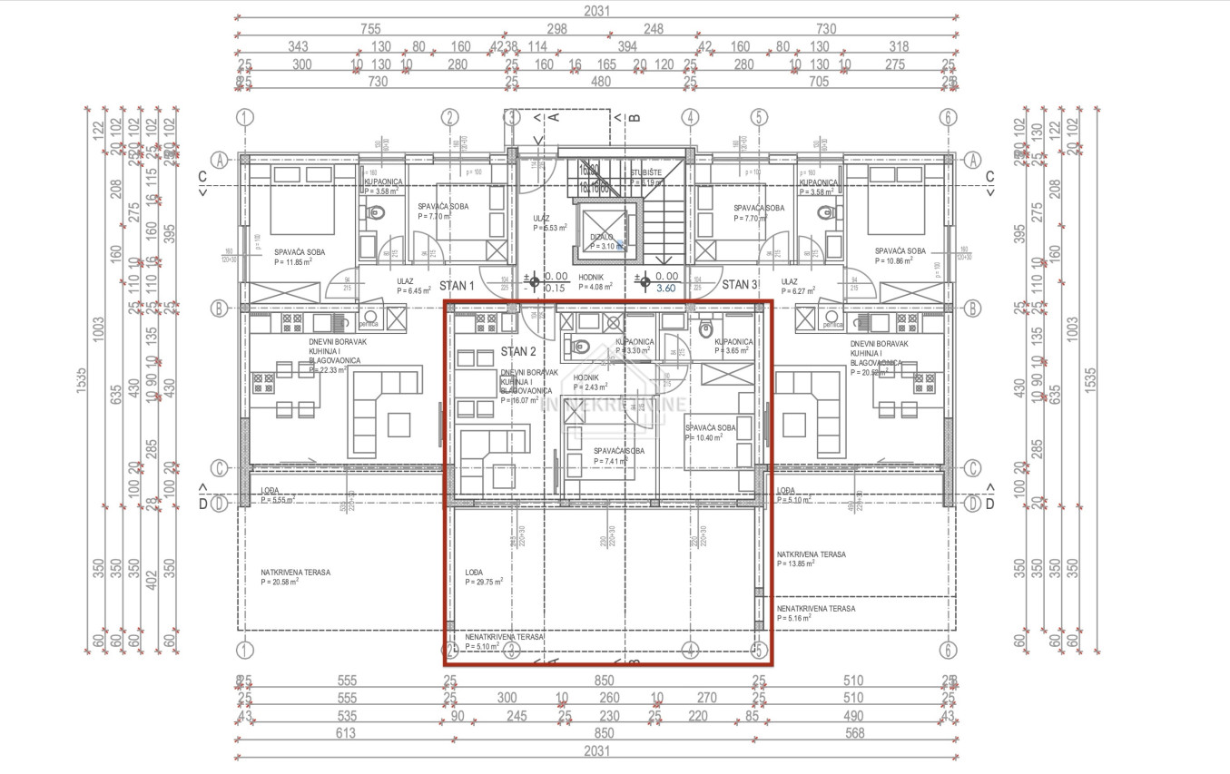
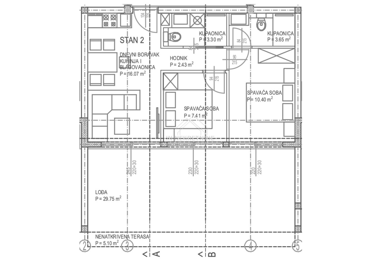
Die Wohnung verfügt über eine Innenfläche von 43,26 m², überzeugt jedoch durch eine sehr effiziente Raumaufteilung, die maximalen Wohnkomfort bietet. Sie eignet sich ideal als Hauptwohnsitz, Ferienimmobilie oder als Investition zur touristischen Vermietung.

Die gesamte nutzbare Fläche der Wohnung inklusive aller zugehörigen Bereiche beträgt 77,72 m².

Raumaufteilung:

  • Offener Wohn- und Küchenbereich – 16,07 m²

  • Flur – 2,43 m²

  • Schlafzimmer – 7,41 m²

  • Schlafzimmer – 10,40 m² mit eigenem Bad (3,65 m²)

  • Badezimmer – 3,30 m²

Außenbereiche

  • Großzügige Loggia mit 29,75 m², ideal für die Nutzung fast das ganze Jahr

  • Nicht überdachte Terrasse mit 5,10 m²

  • Privater Garten 25 m2

Zur Wohnung gehören außerdem zwei Außenstellplätze.

Hochwertige Bauweise und Ausstattung:

  • Schüco Aluminiumfenster und -türen mit elektrischen Rollläden und Jalousien an Glasfronten

  • Schindler Aufzug

  • Fußbodenheizung über Wärmepumpe

  • Mitsubishi Klimaanlagen

  • Erstklassige Großformat-Keramik

  • Hochwertiger Parkettboden

* Der Käufer zahlt keine Immobilienerwerbssteuer, da der Verkäufer eine juristische Person ist.

  • Objektcode A667
  • Typ Ferienwohnung am Meer
  • Ort Nin
  • Siedlung Zaton
  • Fläche 78.00 m2
  • Neubau +
  • Baujahr 2025
  • Stockwerk 0
  • Anzahl der Schlafzimmera 2
  • Terrasse / Loggia +
  • Entfernung vom Meer 20 m
  • Meerblick -
  • Parkplatz +
  • Garage -
  • Heizung Klimaanlage
  • Nebenkosten Städtische Wasserversorgung, Telefon
  • Genehmigungen Eigentumsnachweis, Baugenehmigung
  • Energieausweis -
  • Preis pro m2 4.000,00 €
  • Gesamtpreis 310.880,00 €