Beschreibung der Immobilie

Zadar – Diklo | Geräumige Drei-Zimmer-Wohnung 150 m vom Meer mit Meerblick


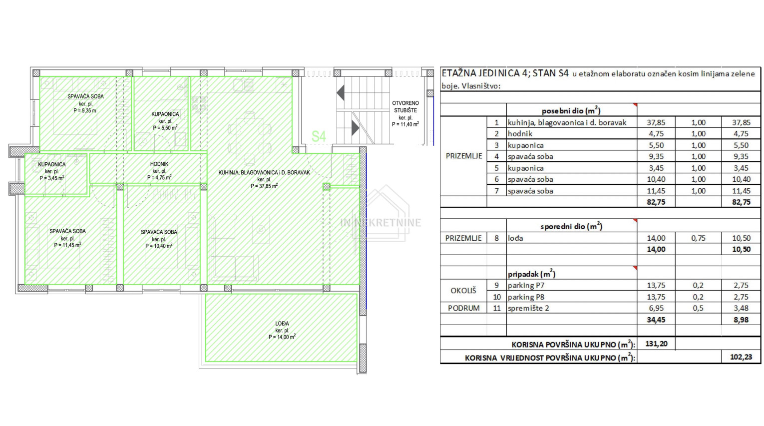
Zum Verkauf steht eine komfortable und großzügige Drei-Zimmer-Wohnung, gelegen in einem der begehrtesten Stadtteile von Zadar – Diklo. Die Wohnung befindet sich in einem modernen, hochwertig gebauten Wohngebäude mit insgesamt sechs Wohneinheiten, in einer ruhigen Lage, ideal für ein angenehmes Wohnen – fern vom Stadtlärm und dennoch nur 150 Meter vom Meer und Strand entfernt.

Die Wohnung liegt im 1. Obergeschoss und ist südlich ausgerichtet, was den ganzen Tag über viel natürliches Licht garantiert. Von der großzügigen Terrasse bietet sich ein wunderschöner Meerblick.

Die Wohnung besteht aus:

  • offen gestaltetem Küchen-, Ess- und Wohnbereich

  • Flur

  • drei Schlafzimmern, eines davon mit eigenem Badezimmer

  • Loggia mit Meerblick

Zusätzlich gehören zur Wohnung:

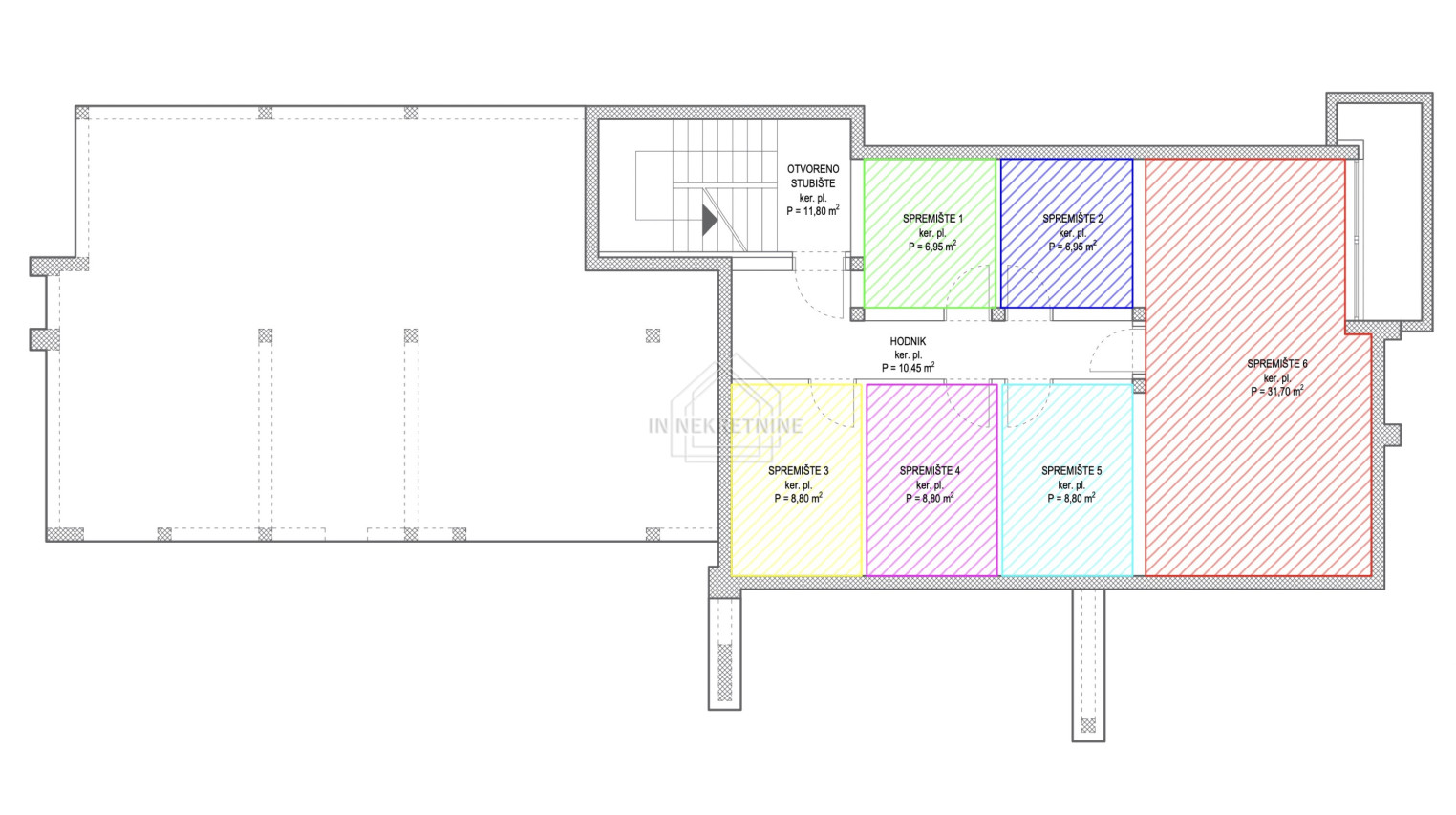
  • Abstellraum im Untergeschoss (Kennzeichnung S2)

  • zwei Außenstellplätze (P7 und P8)

Die Gesamtbodenfläche beträgt 131,20 m² und die gesamt nutzbare Wohnfläche der Wohnung umfasst 102,23 m².

Dank der hervorragenden Lage, des modernen Gebäudes, der Meeresnähe und des optimalen Grundrisses ist diese Wohnung ideal sowohl für die touristische Vermietung als auch für das Ganzjahreswohnen. Die Räume sind hell, großzügig und sehr funktional – perfekt für alle, die eine hohe Lebensqualität in Zadar suchen.

  • Objektcode A663
  • Typ Ferienwohnung am Meer
  • Ort Zadar
  • Siedlung Diklo
  • Fläche 102.00 m2
  • Neubau +
  • Baujahr 2026
  • Stockwerk 1
  • Anzahl der Schlafzimmera 3
  • Terrasse / Loggia +
  • Entfernung vom Meer 150 m
  • Meerblick +
  • Parkplatz +
  • Garage -
  • Heizung Klimaanlage
  • Nebenkosten Städtische Wasserversorgung, Telefon
  • Genehmigungen Eigentumsnachweis, Baugenehmigung
  • Energieausweis -
  • Preis pro m2 0,00 €
  • Gesamtpreis 406.000,00 €