Beschreibung der Immobilie

Neubau mit Meerblick – Luxuriöse Drei-Zimmer-Wohnung im Eliteviertel von Zadar – Diklo


Zum Verkauf steht eine hochwertige Drei-Zimmer-Wohnung in einem luxuriösen Neubau, gelegen in einem der begehrtesten Stadtteile von Zadar – Diklo. Die Wohnung ist Teil eines exklusiven Projekts mit drei modernen Gebäuden, die durch erstklassige Bauqualität, modernes Design und sorgfältig ausgewählte Materialien überzeugen.

Die Gebäude befinden sich in einem erhöhten Teil von Diklo, was einen wunderschönen, freien Blick auf das Meer, die Inseln und den Kanal von Zadar ermöglicht. Die Lage ist äußerst ruhig und bietet viel Privatsphäre; das Meer ist nur 600 Meter entfernt.

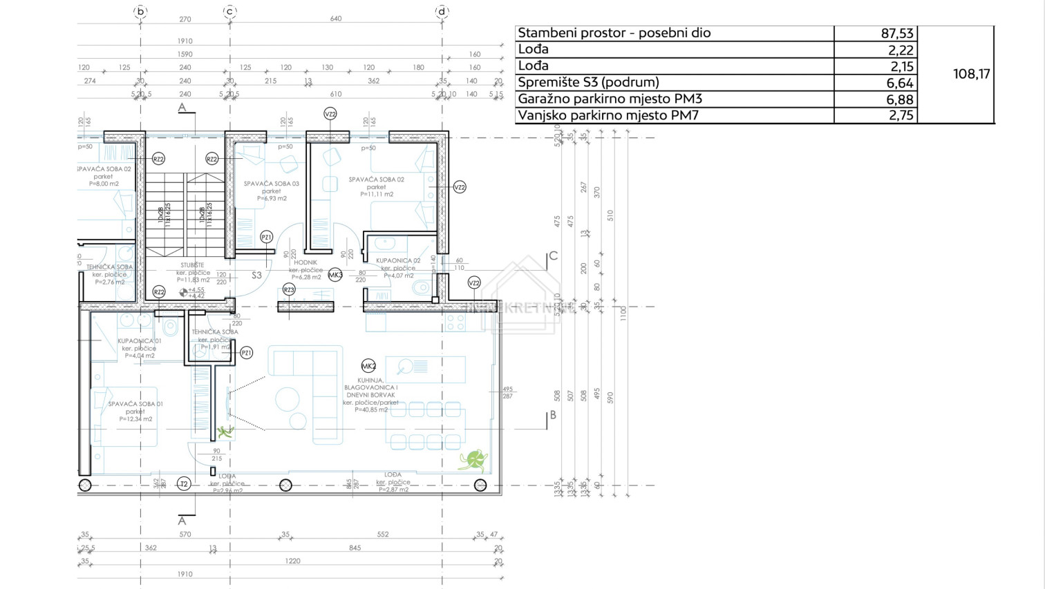
Wohnungsaufteilung – 1. Stock, Südost-Ausrichtung

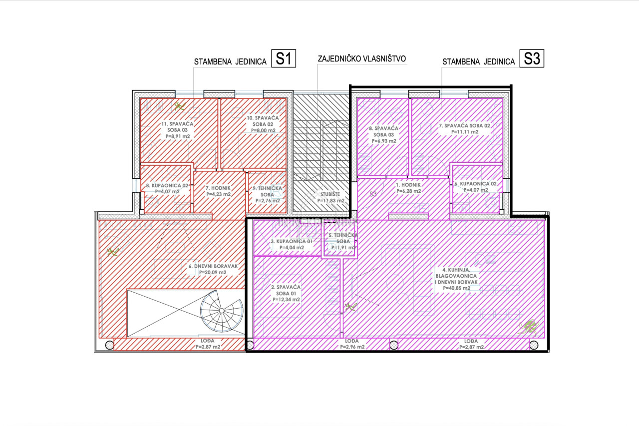
Die Wohnung befindet sich im 1. Obergeschoss des Gebäudes 1 und besteht aus:

  • großzügigem Eingangsbereich

  • drei Schlafzimmern (eines davon mit eigenem Badezimmer)

  • zusätzlichem Badezimmer

  • offen gestaltetem Küchenbereich

  • Essbereich und Wohnzimmer

  • Technik-/Hauswirtschaftsraum

  • zwei kleinen Loggien

  • Abstellraum S3 im Untergeschoss – 13,27 m²

  • Tiefgaragenstellplatz PM3 – 13,75 m²

  • Außenstellplatz PM7 – 13,75 m²

Die Gesamtbodenfläche beträgt 134,13 m², die gesamt nutzbare Wohnfläche 108,17 m².

Der Käufer zahlt KEINE Grunderwerbssteuer, da der Verkäufer eine juristische Person ist!

  • Objektcode A659
  • Typ Ferienwohnung am Meer
  • Ort Zadar
  • Siedlung Diklo
  • Fläche 108.00 m2
  • Neubau +
  • Baujahr 2026
  • Stockwerk 1
  • Anzahl der Schlafzimmera 3
  • Terrasse / Loggia -
  • Entfernung vom Meer 600 m
  • Meerblick +
  • Parkplatz +
  • Garage +
  • Heizung Klimaanlage
  • Nebenkosten Städtische Wasserversorgung, Telefon
  • Genehmigungen Eigentumsnachweis, Baugenehmigung
  • Energieausweis -
  • Preis pro m2 6.000,00 €
  • Gesamtpreis 649.020,00 €