Beschreibung der Immobilie

Privlaka – Moderne Neubauwohnung, nur 150 m vom Meer entfernt + große Dachterrasse mit Meerblick!


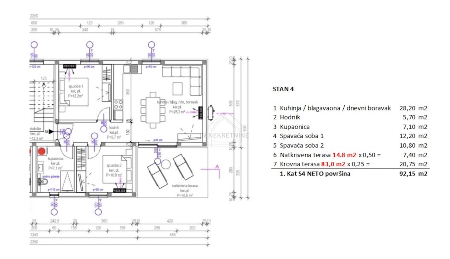
Zum Verkauf steht eine moderne Neubauwohnung in einer ruhigen Lage in Privlaka, nur 150 Meter vom Meerentfernt. Die Immobilie befindet sich im ersten Stock eines kleinen Wohngebäudes mit insgesamt nur 4 Wohneinheiten, was Ruhe, Privatsphäre und ein angenehmes Wohngefühl garantiert. Zur Wohnung gehört zudem eine großzügige Dachterrasse von 83 m² mit wunderschönem Meerblick.

Die Wohnung besteht aus: offenem Küchen-, Ess- und Wohnbereich, Flur, 2 Schlafzimmern, Badezimmer, überdachter Terrasse sowie einer Dachterrasse (83 m²). Zur Wohnung gehören zwei private Außenparkplätze.

Bauqualität & Ausstattung:

  • Einbruchs- und feuerhemmende Eingangstür

  • Keramikfliesen der 1. Klasse im Flur und Wohnbereich

  • INOX-Geländer im Treppenhaus

  • Internet- und Satelliten-TV-Anschlüsse im Wohnzimmer und in den Schlafzimmern

  • SPC-Bodenbeläge in den Schlafzimmern

  • PVC-Fenster (außen anthrazit, innen weiß) mit Dreifachverglasung

  • Elektrische Rollläden und integrierte Insektenschutzgitter

  • Vaillant-Klimaanlagen + Fußbodenheizung im Badezimmer

  • Moderne Badezimmer mit Walk-in-Dusche

  • Balkon mit halb gemauerter und halb verglaster Brüstung

  • Dachterrasse mit Anschlüssen für einen Jacuzzi, eingebautem Grill und Außenspüle mit Warm- und Kaltwasser

Die Wohnung wird unmöbliert verkauft (ausgenommen vollständig ausgestattete Badezimmer).


Das Gebäude ist fertiggestellt und sofort bezugsbereit.


Eigentum ist sauber und ordentlich (1/1).

  • Objektcode A652
  • Typ Ferienwohnung am Meer
  • Ort Privlaka
  • Siedlung
  • Fläche 92.00 m2
  • Neubau +
  • Baujahr 2025
  • Stockwerk 1
  • Anzahl der Schlafzimmera 2
  • Terrasse / Loggia +
  • Entfernung vom Meer 150 m
  • Meerblick +
  • Parkplatz +
  • Garage -
  • Heizung
  • Nebenkosten Städtische Wasserversorgung, Telefon
  • Genehmigungen Eigentumsnachweis, Baugenehmigung, Nutzungsgenehmigung
  • Energieausweis -
  • Preis pro m2 0,00 €
  • Gesamtpreis 322.525,00 €