Beschreibung der Immobilie

Neubauwohnung in Privlaka zu verkaufen – nur 150 m vom Meer


Zum Verkauf steht eine moderne Neubauwohnung in Privlaka, gelegen in einer ruhigen Wohngegend und nur 150 Meter vom Meer entfernt. Die Wohnung befindet sich im Erdgeschoss eines kleinen Gebäudes mit insgesamt vier Wohneinheiten – ideal für alle, die Privatsphäre und hochwertige Bauweise suchen.

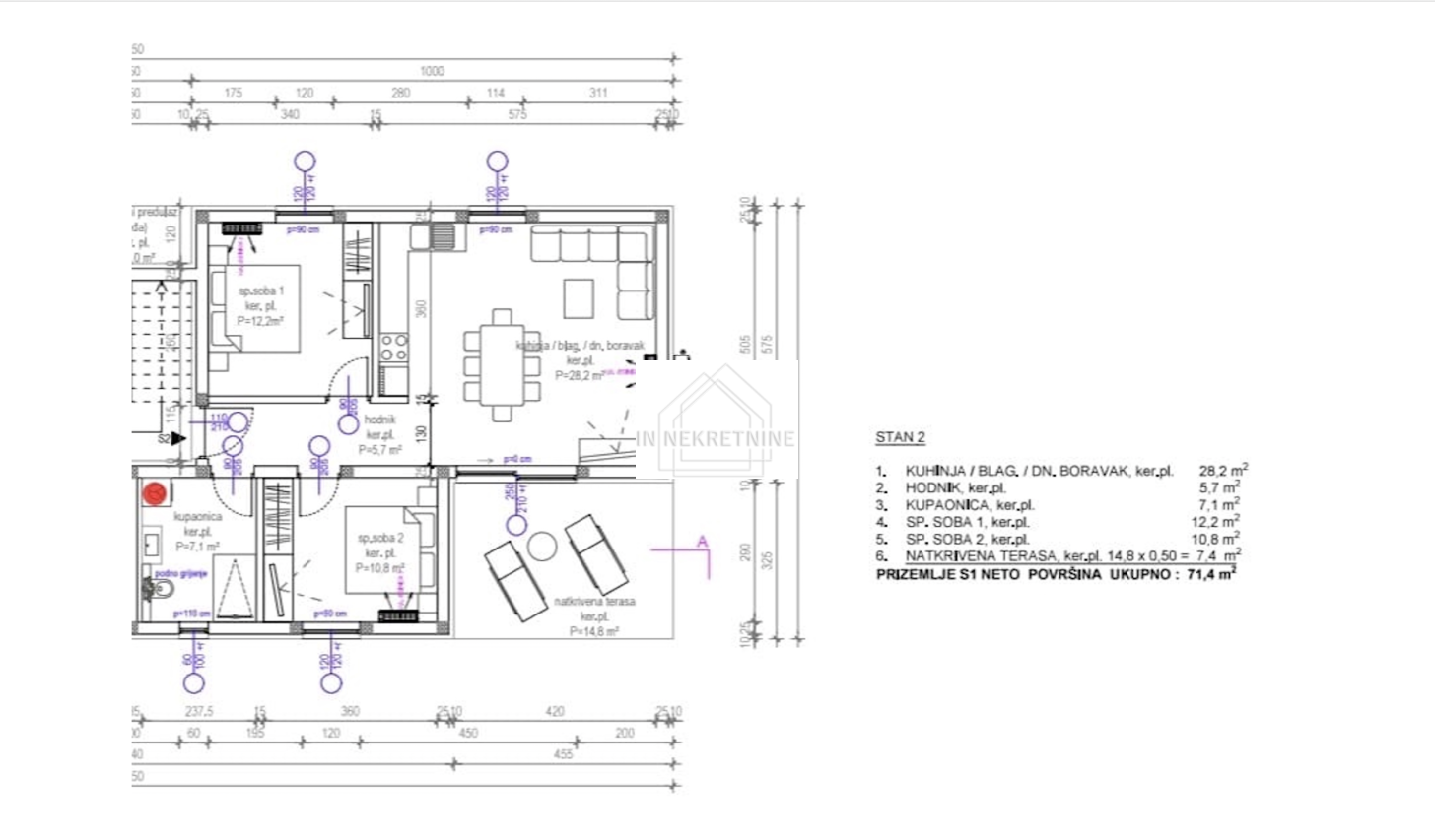
Die Wohnung bietet eine offene Küche mit Wohn- und Essbereich, Flur, 2 Schlafzimmer, ein modernes Badezimmer, eine überdachte Terrasse sowie einen Garten (56,25 m²). Ein eigener Außenparkplatz ist im Preis enthalten.

Bauqualität und Ausstattung:

  • Einbruchsichere und feuerbeständige Eingangstür

  • Keramikfliesen 1. Klasse im Flur und Wohnbereich

  • INOX-Treppengeländer

  • Internet- und Satelliten-TV-Anschlüsse in allen Räumen

  • SPC-Bodenbeläge in den Schlafzimmern

  • PVC-Fenster (außen anthrazit, innen weiß) mit Dreifachverglasung

  • Elektrische Rollläden und integrierte Insektenschutzgitter

  • Vaillant-Klimaanlagen + Fußbodenheizung im Badezimmer

  • Modernes Badezimmer mit Walk-in-Dusche

Die Wohnung wird unmöbliert verkauft (Bäder vollständig ausgestattet).

Das Gebäude ist fertiggestellt und sofort bezugsbereit. Eigentum 1/1.

 

  • Objektcode A650
  • Typ Ferienwohnung am Meer
  • Ort Privlaka
  • Siedlung
  • Fläche 78.00 m2
  • Neubau +
  • Baujahr 2025
  • Stockwerk 0
  • Anzahl der Schlafzimmera 2
  • Terrasse / Loggia +
  • Entfernung vom Meer 150 m
  • Meerblick -
  • Parkplatz +
  • Garage -
  • Heizung Klimaanlage
  • Nebenkosten Städtische Wasserversorgung, Telefon
  • Genehmigungen Eigentumsnachweis, Baugenehmigung, Nutzungsgenehmigung
  • Energieausweis -
  • Preis pro m2 0,00 €
  • Gesamtpreis 235.620,00 €