Beschreibung der Immobilie

 

Exklusive Neubauanlage mit 6 Wohneinheiten, Aufzug, Garage – Sukošan


An einer ruhigen und attraktiven Lage in Sukošan stehen moderne und luxuriöse Wohnungen zum Verkauf, die sich in einer exklusiven Neubau-Wohnanlage mit insgesamt 6 Einheiten befinden.

Das Gebäude wurde nach höchsten Standards gebaut, wobei besonderer Wert auf eine hochwertige Ausführung und edle Details gelegt wurde. Ein zusätzliches Highlight ist der moderne KONE-Aufzug, der den Bewohnern maximalen Komfort und Funktionalität bietet. In der Tiefgarage sind private Stellplätze für die Wohnungen B1, B5 und B6 vorgesehen.

Jede Wohnung verfügt über eine moderne Küche mit Bosch-Geräten, ein Badezimmer mit Waschmaschine, einer Terrasse mit Kassettenmarkise sowie sorgfältig ausgewählte Details, die dem Wohnraum sofort Funktionalität, Stil und Wert verleihen.

Die Wohnungen im zweiten Obergeschoss (B5 und B6) verfügen über komplett ausgestattete private Dachterrassen mit herrlichem Meerblick. Der überdachte Bereich von 25 m² umfasst eine Außenküche mit Kochinsel, Gasgrill, Doppel-Induktionskochfeld, Spüle, Kühlschrank, Weinkühlschrank, Arbeitsfläche, Barhocker und integriertem TV. Im offenen Bereich befinden sich ein Jacuzzi, Sonnenliegen sowie ein Esstisch mit sechs Stühlen.

Die Endphase der Möblierung und Ausstattung ist fast abgeschlossen, sodass die Fertigstellung und der Einzug in Kürze möglich sein werden.

Diese Immobilie ist die ideale Wahl für ein luxuriöses Zuhause in ruhiger Umgebung, aber auch eine attraktive Investition für die touristische Vermietung. Die Lage bietet Privatsphäre und Ruhe, gleichzeitig aber auch die Nähe zu allen Annehmlichkeiten für ein angenehmes und hochwertiges tägliches Leben.

Im Angebot sind 6 Wohnungen:

ERDGESCHOSS:
Wohnung B1 (70,69 m²) – Bestehend aus:
großzügige Küche, Wohn- und Essbereich (25,70 m²), Flur (1,05 m²), Schlafzimmer (12,30 m²), Badezimmer (5,55 m²), große überdachte Terrasse (20,40 m²), privater Garten (41,90 m²), Abstellraum (6,15 m²) und Garagenstellplatz in der Tiefgarage (17,25 m²).
Preis inkl. MwSt.: 367.500,00 €

Wohnung B2 (75,38 m²) – Bestehend aus:
Küche, Wohn- und Essbereich (25,70 m²), Flur (1,05 m²), Schlafzimmer (12,30 m²), Badezimmer (5,55 m²), überdachte Terrasse (20,40 m²), nicht überdachte Terrasse (19,00 m²), Garten (82,00 m²), Abstellraum (6,15 m²) und zwei Außenstellplätze (je 13,75 m²).
Preis inkl. MwSt.: 392.000,00 €

1. OBERGESCHOSS:
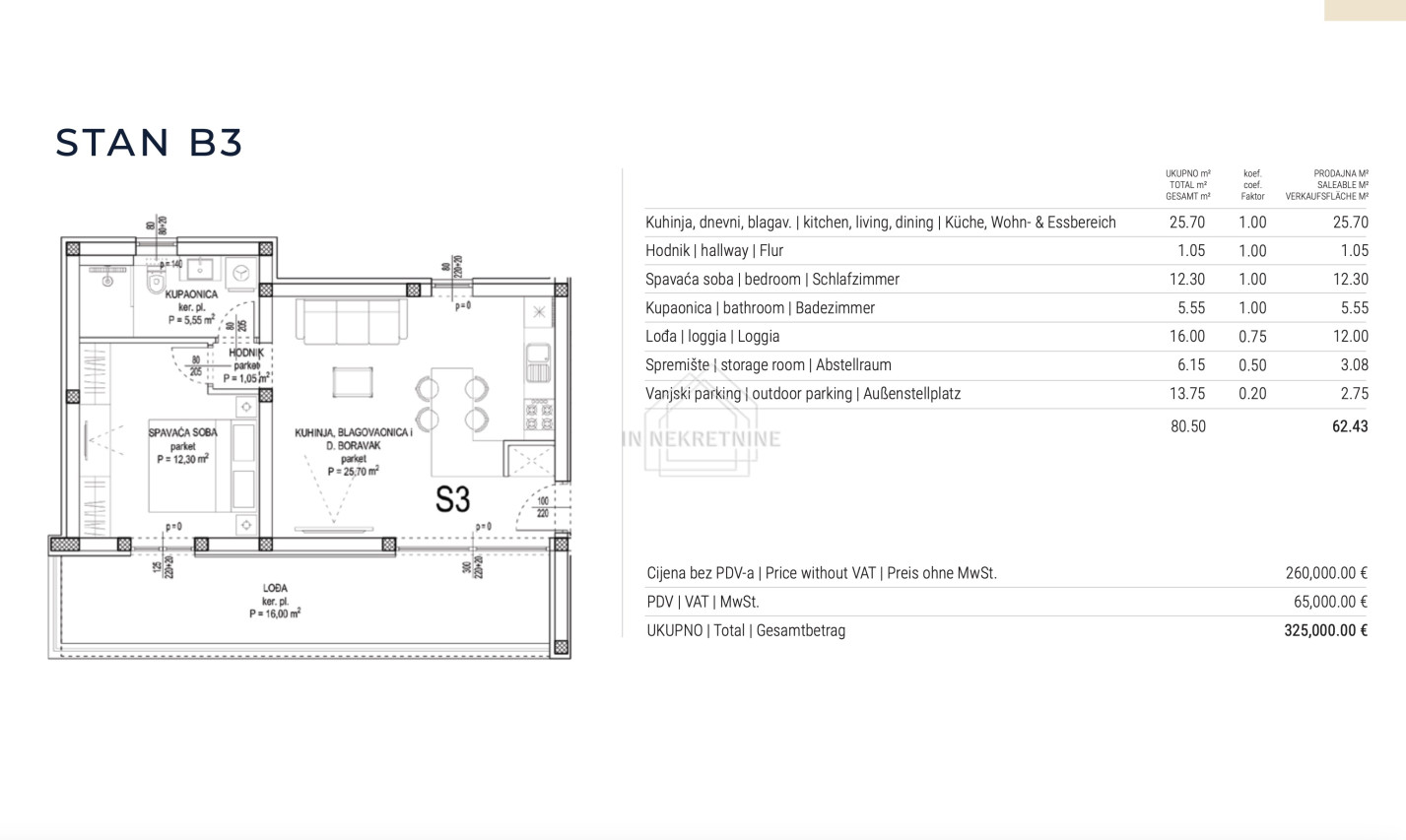
Wohnung B3 (62,43 m²) – Bestehend aus:
Küche, Wohn- und Essbereich (25,70 m²), Flur (1,05 m²), Schlafzimmer (12,30 m²), Badezimmer (5,55 m²), Loggia (16,00 m²), Abstellraum (6,15 m²), Außenstellplatz (13,75 m²).
Preis inkl. MwSt.: 325.000,00 €

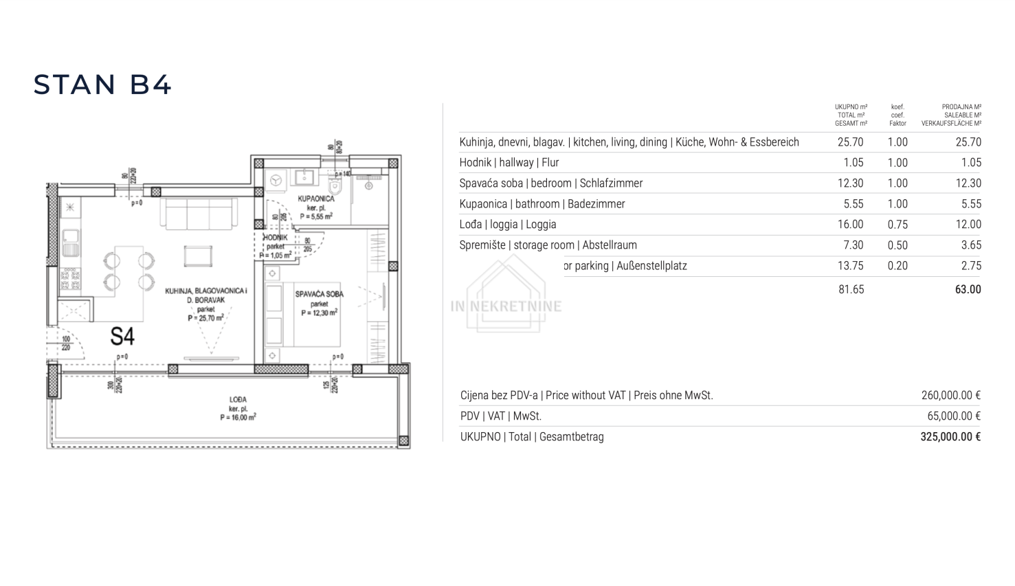
Wohnung B4 (63 m²) – Bestehend aus:
Küche, Wohn- und Essbereich (25,70 m²), Flur (1,05 m²), Schlafzimmer (12,30 m²), Badezimmer (5,55 m²), Loggia (16,00 m²), Abstellraum (7,30 m²), Außenstellplatz (13,75 m²).
Preis inkl. MwSt.: 325.000,00 €

2. OBERGESCHOSS:
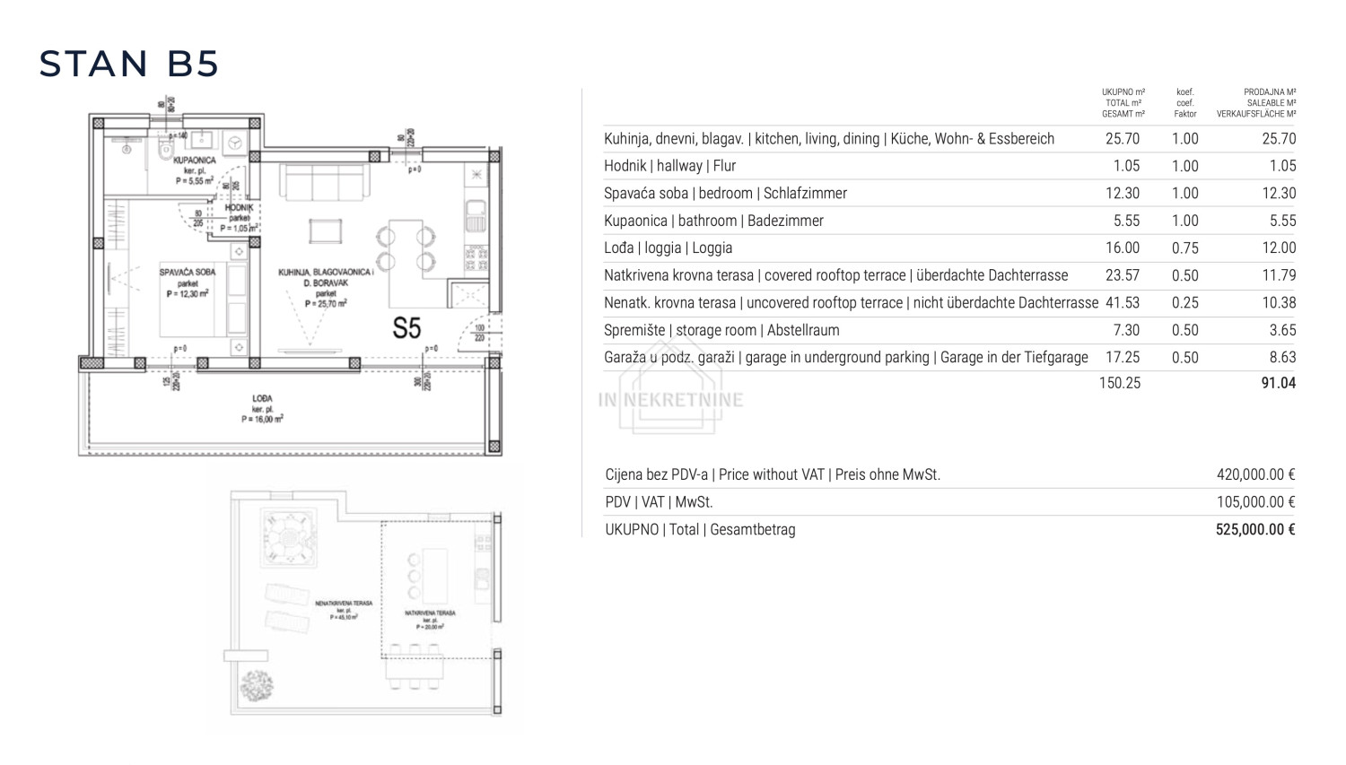
Wohnung B5 (91,04 m²) – Bestehend aus:
Küche, Wohn- und Essbereich (25,70 m²), Flur (1,05 m²), Schlafzimmer (12,30 m²), Badezimmer (5,55 m²), Loggia (16,00 m²), überdachte Terrasse (23,57 m²), nicht überdachte Terrasse (41,53 m²), Abstellraum (7,30 m²) und Garagenstellplatz in der Tiefgarage (17,25 m²).
Preis inkl. MwSt.: 525.000,00 €

Wohnung B6 (91,92 m²) – Bestehend aus:
Küche, Wohn- und Essbereich (25,70 m²), Flur (1,05 m²), Schlafzimmer (12,30 m²), Badezimmer (5,55 m²), Loggia (16,00 m²), überdachte Dachterrasse (23,57 m²), nicht überdachte Dachterrasse (41,75 m²), Abstellraum (8,95 m²) und Garagenstellplatz in der Tiefgarage (17,25 m²).
Preis inkl. MwSt.: 525.000,00 €

Der Käufer zahlt keine Grunderwerbssteuer, da der Verkäufer eine juristische Person ist!


Sollten Sie diese Immobilie anderswo zu einem günstigeren Preis gesehen haben, gilt selbstverständlich derselbe Preis auch bei uns!


Für weitere Informationen oder zur Vereinbarung einer Besichtigung kontaktieren Sie uns gerne.


 

  • Objektcode A636
  • Typ Ferienwohnung am Meer
  • Ort Sukošan
  • Siedlung
  • Fläche 63.00 m2
  • Neubau +
  • Baujahr 2025
  • Stockwerk 1
  • Anzahl der Schlafzimmera 1
  • Terrasse / Loggia +
  • Entfernung vom Meer 400 m
  • Meerblick +
  • Parkplatz +
  • Garage -
  • Heizung Klimaanlage
  • Nebenkosten Städtische Wasserversorgung, Telefon
  • Genehmigungen Eigentumsnachweis, Baugenehmigung
  • Energieausweis A+
  • Preis pro m2 0,00 €
  • Gesamtpreis 325.000,00 €