Beschreibung der Immobilie

Exklusives Zwei-Zimmer-Penthouse mit Dachterrasse in luxuriöser Neubauanlage – Sukošan


In ruhiger Lage von Sukošan steht ein modernes und luxuriöses Zwei-Zimmer-Penthouse zum Verkauf, das sich im zweiten Stock eines eleganten Wohngebäudes befindet. Das Gebäude befindet sich in einer fortgeschrittenen Bauphase. Diese hochwertige Neubauanlage besteht aus nur drei Wohneinheiten – jede auf einer eigenen Etage – und garantiert so maximale Privatsphäre und Wohnkomfort. Ein moderner KONE-Aufzug sorgt zusätzlich für Komfort und Funktionalität. Diese Immobilie ist sowohl als luxuriöses Zuhause als auch als Investition zur Vermietung bestens geeignet. Die Lage bietet Ruhe, aber gleichzeitig auch Nähe zu allen wichtigen Einrichtungen des täglichen Lebens.

Die Wohnung A3 befindet sich im zweiten Stock und überzeugt durch ihre erstklassige Bauqualität und hochwertige Materialien. Zudem verfügt sie über eine private Dachterrasse mit traumhaftem Meerblick, was diese Immobilie zu einer echten Rarität auf dem Markt macht.

Das Gebäude befindet sich in der Endphase der Bauarbeiten – die Fertigstellung und der Einzug sind in Kürze möglich.

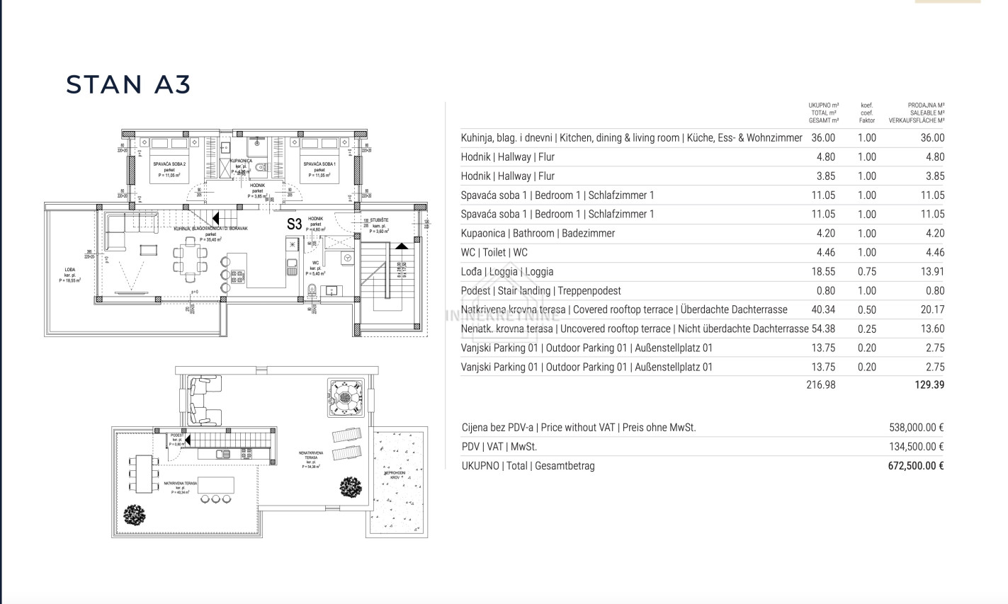
Raumaufteilung:

  • Geräumiger, offener Wohnbereich mit Küche & Esszimmer – 36,00 m²

  • Zwei Schlafzimmer – je 11,05 m²

  • Badezimmer – 4,20 m²

  • Zusätzliches WC – 4,46 m²

  • Zwei Flure – 4,80 m² und 3,85 m²

  • Loggia – 18,55 m²

  • Überdachte Dachterrasse – 40,34 m²

  • Nicht überdachte Dachterrasse – 54,38 m²

  • Zwei Außenstellplätze – je 13,75 m²

Gesamtverkaufsfläche: 129,39 m²

Kaufpreis inkl. MwSt.: 672.500,00 €
Der Käufer zahlt keine Grunderwerbsteuer, da der Verkäufer eine juristische Person ist!

 


 Für weitere Informationen oder zur Vereinbarung eines Besichtigungstermins kontaktieren Sie uns gerne.

  • Objektcode A635
  • Typ Ferienwohnung am Meer
  • Ort Sukošan
  • Siedlung
  • Fläche 129.00 m2
  • Neubau +
  • Baujahr 2025
  • Stockwerk 2
  • Anzahl der Schlafzimmera 2
  • Terrasse / Loggia -
  • Entfernung vom Meer 400
  • Meerblick +
  • Parkplatz +
  • Garage -
  • Heizung Klimaanlage
  • Nebenkosten Städtische Wasserversorgung, Telefon
  • Genehmigungen Eigentumsnachweis, Baugenehmigung, Nutzungsgenehmigung
  • Energieausweis -
  • Preis pro m2 0,00 €
  • Gesamtpreis 672.500,00 €