Beschreibung der Immobilie

Zweizimmerwohnung im Erdgeschoss mit Garten und Meerblick – 106,22 m²


Zum Verkauf steht eine attraktive Wohnung im Erdgeschoss eines modernen Neubaus mit insgesamt sechs Wohneinheiten, gelegen in Sv. Petar na Moru, in der Gemeinde Sv. Filip i Jakov. Das Gebäude befindet sich derzeit im Bau und liegt in ruhiger Umgebung, nur 150 Meter vom Meer und Strand entfernt – nur 5 Gehminuten.

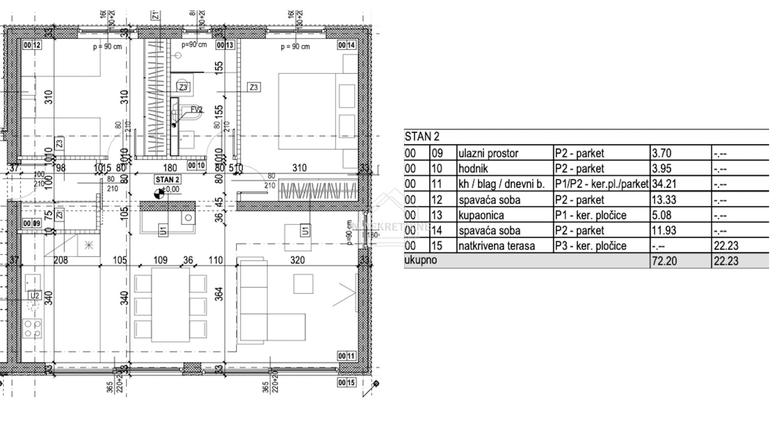
Wohnung S2 befindet sich im Erdgeschoss, verfügt über einen privaten Garten und bietet einen Meerblick auf den Pašman-Kanal. Diese Immobilie ist ideal für alle, die ein komfortables Urlaubsdomizil oder ein Zuhause für das ganze Jahr suchen – Ruhe und Natur in Kombination mit der Nähe zu den Städten Zadar und Biograd na Moru.

Die Nettofläche der Wohnung mit allen Zugehörigkeiten beträgt 106,22 m².

Die Raumaufteilung umfasst:

  • Eingangsbereich

  • Flur

  • Küche mit Ess- und Wohnzimmer im offenen Wohnkonzept

  • Zwei Schlafzimmer

  • Badezimmer

  • Überdachte Terrasse mit Zugang zum Garten und Meerblick

Zur Wohnung gehört ein Außenstellplatz sowie ein eigener Garten, ideal zum Entspannen oder für gesellige Stunden mit der Familie.

Besonderheiten:

  • Erdgeschoss mit privatem Garten

  • Hervorragende Lage in Meeresnähe

  • Moderner Neubau in ruhiger Umgebung

  • Meerblick

  • Nähe zu Zadar und Biograd

Diese Immobilie eignet sich perfekt zur Eigennutzung in den Sommermonaten, aber auch als hervorragende Investition zur touristischen Vermietung.


Kontaktieren Sie uns gerne für weitere Informationen oder einen Besichtigungstermin.

  • Objektcode A612
  • Typ Ferienwohnung am Meer
  • Ort Sv. Filip i Jakov
  • Siedlung Sv. Petar na Moru
  • Fläche 106.00 m2
  • Neubau +
  • Baujahr 2025
  • Stockwerk 0
  • Anzahl der Schlafzimmera 2
  • Terrasse / Loggia +
  • Entfernung vom Meer 150 m
  • Meerblick +
  • Parkplatz +
  • Garage -
  • Heizung Klimaanlage
  • Nebenkosten Städtische Wasserversorgung, Telefon
  • Genehmigungen Eigentumsnachweis, Baugenehmigung
  • Energieausweis -
  • Preis pro m2 0,00 €
  • Gesamtpreis 329.282,00 €