Beschreibung der Immobilie

Privlaka – Neubau, Erdgeschosswohnung mit privatem Garten, 100 m², nur 100 m vom Meer entfernt!


Zum Verkauf steht eine attraktive Erdgeschosswohnung in einem modernen Neubau mit insgesamt 10 Wohneinheiten. Die Immobilie befindet sich in Privlaka, nur 100 Meter vom Meer entfernt, in ruhiger und begehrter Lage – ideal für Erholung und Entspannung fernab vom Trubel der Stadt.

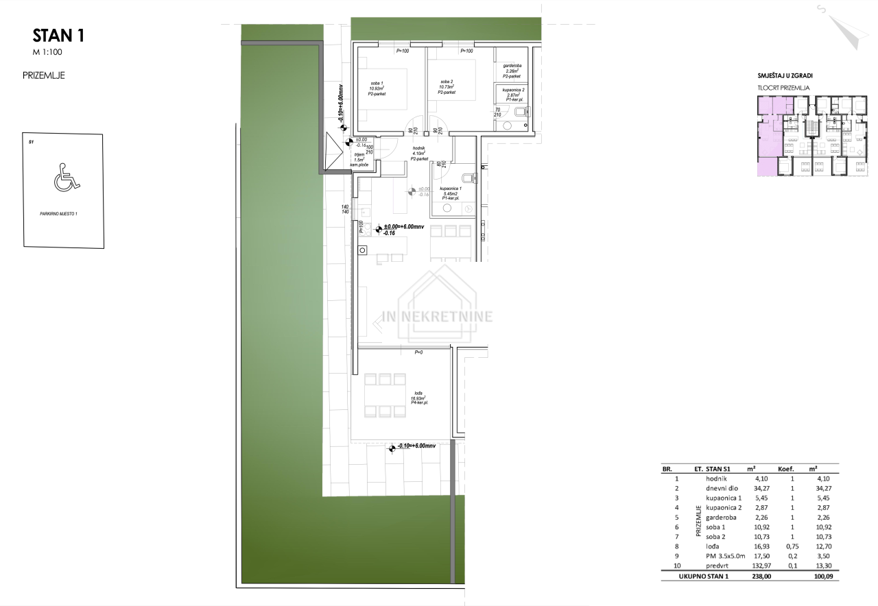
Wohnung S1 mit einer Netto-Wohnfläche von 100,09 m² besteht aus:

  • Flur – 4,10 m²

  • Großzügiges Wohnzimmer mit Küche und Essbereich – 34,27 m²

  • Ankleide – 2,26 m²

  • Badezimmer 1 – 5,45 m²

  • Badezimmer 2 – 2,87 m²

  • Schlafzimmer 1 – 10,92 m²

  • Schlafzimmer 2 – 10,73 m²

  • Loggia  – 16,93 m²

  • Außenstellplatz – 17,50 m²

  • Privater Vorgarten – 132,97 m²

Die Gesamtfläche inkl. Zuschläge beträgt 238 m², die Netto-Wohnfläche liegt bei 100,09 m².

Hauptmerkmale:
✔️ Ruhige und attraktive Lage in Meeresnähe
✔️ Neubau mit modernem Design
✔️ Privater Garten mit 133 m²
✔️ Zwei Badezimmer
✔️ Außenstellplatz im Preis inbegriffen

Der Käufer zahlt keine Grunderwerbsteuer, da der Verkäufer eine juristische Person ist!



Für weitere Informationen und Verfügbarkeit – kontaktieren Sie uns gerne!

  • Objektcode A608
  • Typ Ferienwohnung am Meer
  • Ort Privlaka
  • Siedlung
  • Fläche 100.00 m2
  • Neubau +
  • Baujahr 2025
  • Stockwerk 0
  • Anzahl der Schlafzimmera 2
  • Terrasse / Loggia +
  • Entfernung vom Meer 100 m
  • Meerblick +
  • Parkplatz +
  • Garage -
  • Heizung Klimaanlage
  • Nebenkosten Städtische Wasserversorgung, Telefon
  • Genehmigungen Eigentumsnachweis, Baugenehmigung
  • Energieausweis -
  • Preis pro m2 0,00 €
  • Gesamtpreis 350.315,00 €