Beschreibung der Immobilie

Luxus-Penthouse mit Dachterrasse und Pool – Erste Reihe zum Meer, Zaton bei Zadar


An einem der exklusivsten Standorte in der Umgebung von Zadar, im charmanten Ort Zaton, direkt in erster Reihe zum Meer, steht ein einzigartiges Penthouse zum Verkauf. Es befindet sich im zweiten Stock eines modernen Neubaus und bietet höchsten Komfort, absolute Privatsphäre und einen eleganten Lebensstil mit spektakulärem Meerblick.

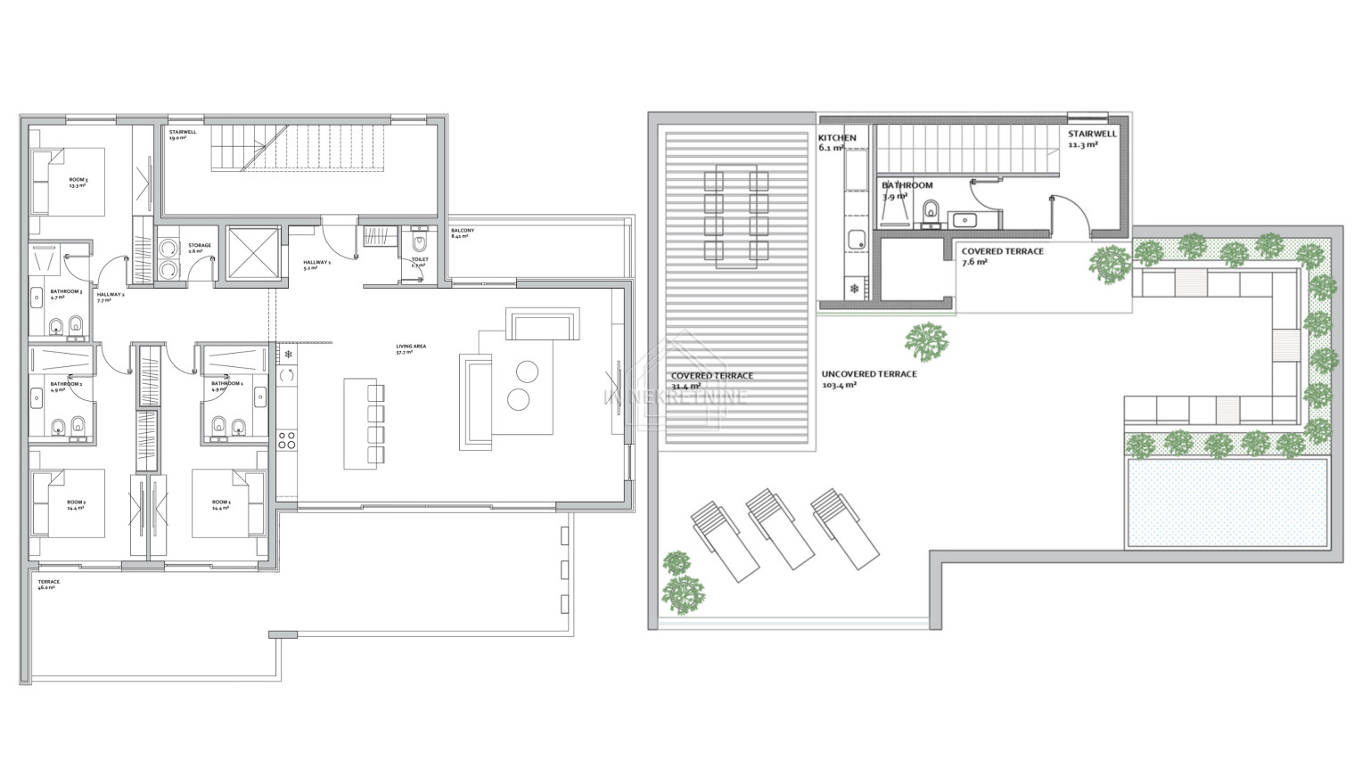
Ein besonderes Highlight ist die großzügige Dachterrasse mit privatem Pool von 21 m², auf der Sie Ruhe, Luxu s und Entspannung mit Panoramablick auf das Meer und traumhafte Sonnenuntergänge genießen können. Der Aufzug führt direkt bis zur Dachterrasse und sorgt für zusätzlichen Komfort.

Das Penthouse verfügt über eine beeindruckende Bruttofläche von 403,04 m² und eineWohnnutzfläche von 256,04 m², mit einem durchdachten Grundriss, der Funktionalität und modernes Design perfekt vereint.

Grundriss des Penthouse:

  • Geräumiger Eingangsbereich
  • Offenes Konzept mit Küche, Essbereich und Wohnzimmer (57,70 m²)
  • Gäste-WC
  • Hauswirtschaftsraum
  • Drei großzügige Schlafzimmer, jeweils mit eigenem Bad

Besondere Highlights:

  • Drei überdachte Terrassen für entspanntes Leben im Freien
  • Exklusive Dachterrasse mit privatem Pool, Sonnenbereich, Sommerküche und WC
  • Abstellraum im Erdgeschoss des Gebäudes
  • Zwei Außenstellplätze
  • Direkter Aufzugszugang vom Erdgeschoss bis zur Dachterrasse

Diese Immobilie ist die perfekte Gelegenheit für alle, die ein luxuriöses Zuhause am Meer suchen – egal ob für den Eigenbedarf, als Feriendomizil oder als sichere Investition in die Ferienvermietung an einer einzigartigen Lage.

* Der Käufer ist von der Grunderwerbsteuer befreit, da der Verkäufer eine juristische Person ist!


Für weitere Informationen und zur Vereinbarung eines Besichtigungstermins stehen wir Ihnen gerne zur Verfügung!

  • Objektcode A589
  • Typ Ferienwohnung am Meer
  • Ort Nin
  • Siedlung Zaton
  • Fläche 256.00 m2
  • Neubau +
  • Baujahr 2025
  • Stockwerk 2
  • Anzahl der Schlafzimmera 3
  • Terrasse / Loggia +
  • Entfernung vom Meer 10 m
  • Meerblick +
  • Parkplatz +
  • Garage -
  • Heizung Klimaanlage
  • Nebenkosten Städtische Wasserversorgung, Telefon
  • Genehmigungen Eigentumsnachweis, Baugenehmigung
  • Energieausweis -
  • Preis pro m2 0,00 €
  • Gesamtpreis 1.792.280,00 €